Home
Gallery
Forest & Shop
Contact
Edinboro Residence
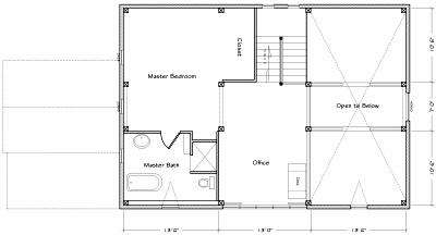
Second Floor Plan: The Master Suite is here with views over the balcony, and an open study area
back
[ 16 of 16 ]
next
|
run slideshow