Home
Gallery
Forest & Shop
Contact
Edinboro Residence
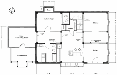
First Floor Plan: On the first floor is a bedroom, with a bath across the hall for the clients special needs son, Joshua. Two alcoves on the first floor create: a window seat for Josh, and an improved work space in the kitchen
back
[ 15 of 16 ]
next
|
run slideshow